PLAN 2828
ABOUT THIS PLAN
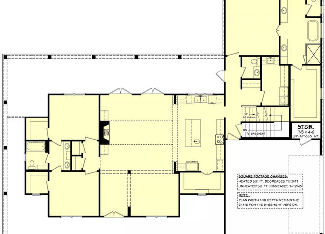
Are you looking for a main-level focused country farmhouse with an awesome wraparound porch? Give House Plan 4382 your consideration! This 2,428-square-foot design boasts a covered porch that stretches from the side-entry garage across the facade, along the side, and across the back where it terminates by the master suite. Just imagine what you could do with all this additional space! Head inside and you'll find the dining room up front and the great room open to the island kitchen in the center of the floor plan. A pair of Jack-and-Jill bedrooms with a divided four-piece bath sit on one side while the entry from the garage, laundry room, powder room, and the master suite are tucked into a hallway on the opposite. If this isn't enough, check out the bonus over the garage! House Plan 4382 is a great size for the average family and will appeal to both parents and kids with its split bedrooms!















